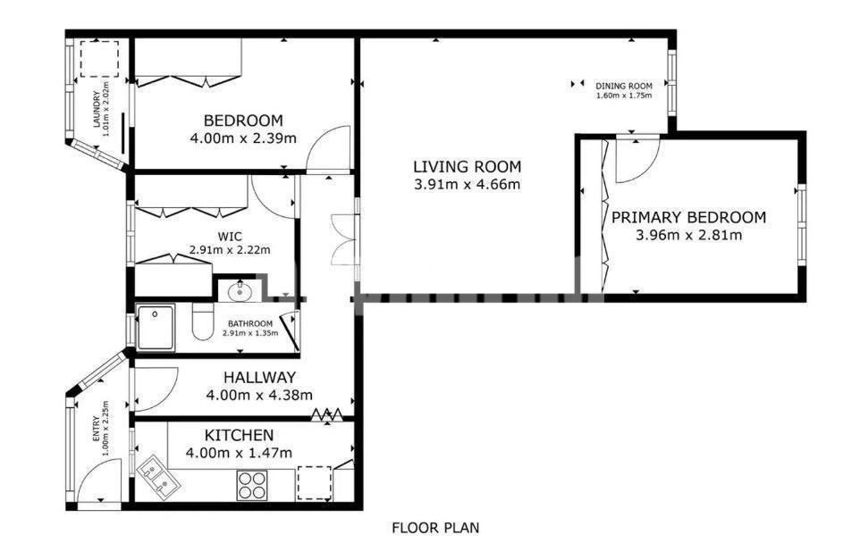
Si buscas un hogar definitivo en el Eixample, donde la luz y la tranquilidad sean protagonistas, este piso puede ser el tuyo. Situado en Calle Aldana, en una finca con ascensor, se trata de una vivienda alta y exterior a amplio patio de manzana, lo que garantiza mucha luz natural y un ambiente muy silencioso. ✨ Distribución cómoda y equilibrada: Salón comedor con dos zonas diferenciadas (estar y comedor) Tres dormitorios: uno doble y dos individuales Cocina independiente Baño completo La vivienda se presenta en excelente estado de conservación, recién pintada, con suelos y puertas nuevos, y una imagen actual y acogedora que invita a entrar a vivir desde el primer día. Dispone además de altillo, preinstalación para calefacción y split de aire acondicionado con bomba de calor en el salón comedor, así como ventilación cruzada que garantiza frescor y confort durante todo el año.
- Distribution
- Surface: 82 m²
- Bedrooms: 3
- Bathrooms: 1
- Features
- ✔ AACC
- Energy certificate: E
- Facilities
- ✔ Lift




