Piso reformado con licencia turística junto a la Sagrada Familia
Se vende espectacular piso de 86 m² en calle Lepant, a solo unos pasos de la Sagrada Familia. Ubicado en una quinta planta con ascensor, ofrece luz natural durante todo el día y unas vistas privilegiadas a uno de los barrios más emblemáticos de Barcelona.
La vivienda fue reformada integralmente en 2018 y se encuentra lista para entrar a vivir. Se entrega amueblada y equipada, con una cocina moderna y electrodomésticos de alta gama.
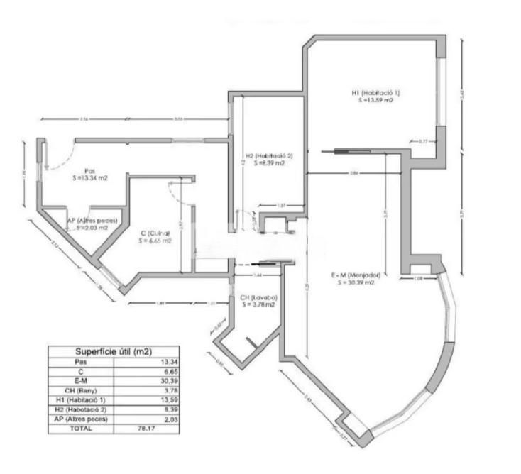
Cuenta con dos habitaciones dobles, un baño completo y un amplio salón-comedor, con posibilidad de crear una tercera habitación.
Dispone de licencia turística activa para 8 personas, con ingresos demostrables y alta rentabilidad, lo que la convierte en una excelente oportunidad de inversión.
Zona con todos los servicios, comercios, restaurantes y excelente comunicación en metro y autobús. Ideal como vivienda habitual, segunda residencia o inversión turística.El precio no incluye los impuestos (ITP Y AJD), ni los gastos (de notaría, registro y gestoría).
- Distribution
- Surface: 86 m²
- Bedrooms: 2
- Bathrooms: 1
- Features
- Energy certificate: F
- Facilities
- ✔ Lift




